"Buy or Lease from the Sydney C.B.D. office specialists"

Leased

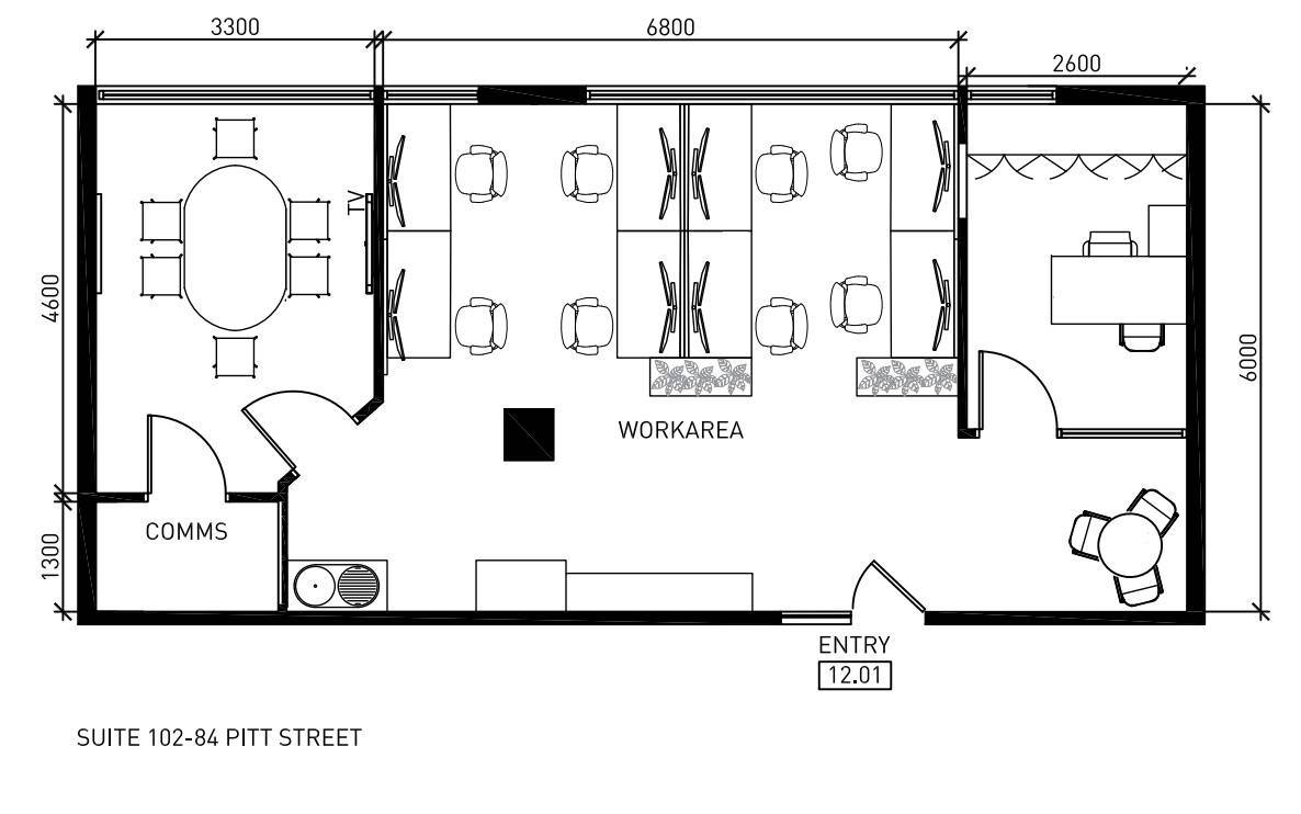
Modern Suite - Fully Fitted & Furnished

- Modern Space

- 77 sqm

- Fully furnished suite

- Fitted with private office, boardroom, 8 sit-to-stand workstations, waiting area

- New carpet, freshly painted, and new LED lighting

- Internal water

- Fully cabled

- Storage units

- Large windows

- Internal A/C controls

- Attractive main lobby area with three lifts

- Near Martin Place

- Close to Wynyard Station and Barangaroo

- Short walk to Circular Quay and Pitt St Mall


84 Pitt Street enjoys a prominent position between Martin Place and Hunter Street and is ultra-convenient to Wynyard, Circular Quay, Australia Square, Pitt Street Mall and the Supreme Law Courts.


Call Robin 0426 251 234 or email: robin@bdowling.com.au
Address Level 1, 2/84 Pitt Street, Sydney
Price $53,900 + GST pa
Property Type Commercial
Property ID 266
Category Offices, Medical/Consulting, Other

Agent Details

Robin Simpson photo

Robin Simpson

0426 251 234
View Profile