"Buy or Lease from the Sydney C.B.D. office specialists"

Leased

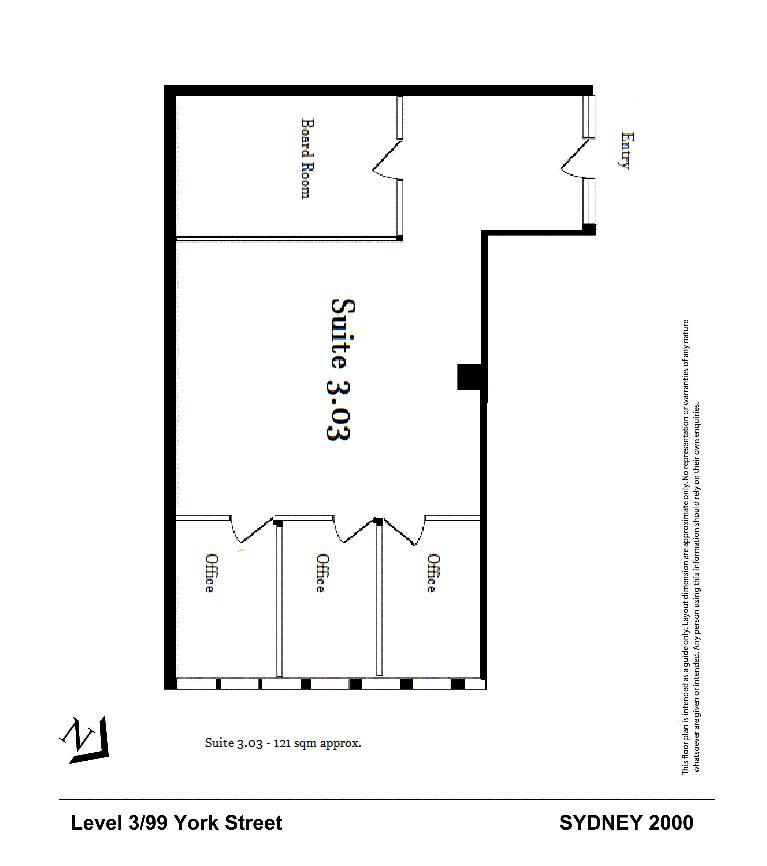
Fitted Suite - 121 Sqm - Close To Town Hall & QVB

- 121sqm

- Fitted suite with three offices, boardroom and open plan area

- Good natural light

- On the floor kitchen and bathrooms

- Newly refurbished building lifts

- Close to Town Hall & QVB

- Available now



99 York Street is situated on the western side of York Street between King and Market Streets in the Midtown sector of the Sydney CBD. This is a convenient CBD location almost opposite the Queen Victoria Building and three minutes walk to Town Hall Station and Darling Harbour.



Call Robin 0426 251 234 or Email: robin@bdowling.com.au



All areas are approx. only. The information herein has been supplied to us. In passing the information on, it should be noted we so without any representation on our part to its truth or accuracy. All interested parties should make their own enquires, and obtain their own independent advice, in order to verify the information.

Property Code: 890
Address Suite 70/99 York Street, Sydney
Price $72,600 + GST Gross ($600m2)
Property Type Commercial
Property ID 21
Category Offices, Medical/Consulting, Other

Agent Details

Robin Simpson photo

Robin Simpson

0426 251 234
View Profile