"Buy or Lease from the Sydney C.B.D. office specialists"

Leased

DEPOSIT TAKEN

DEPOSIT TAKEN

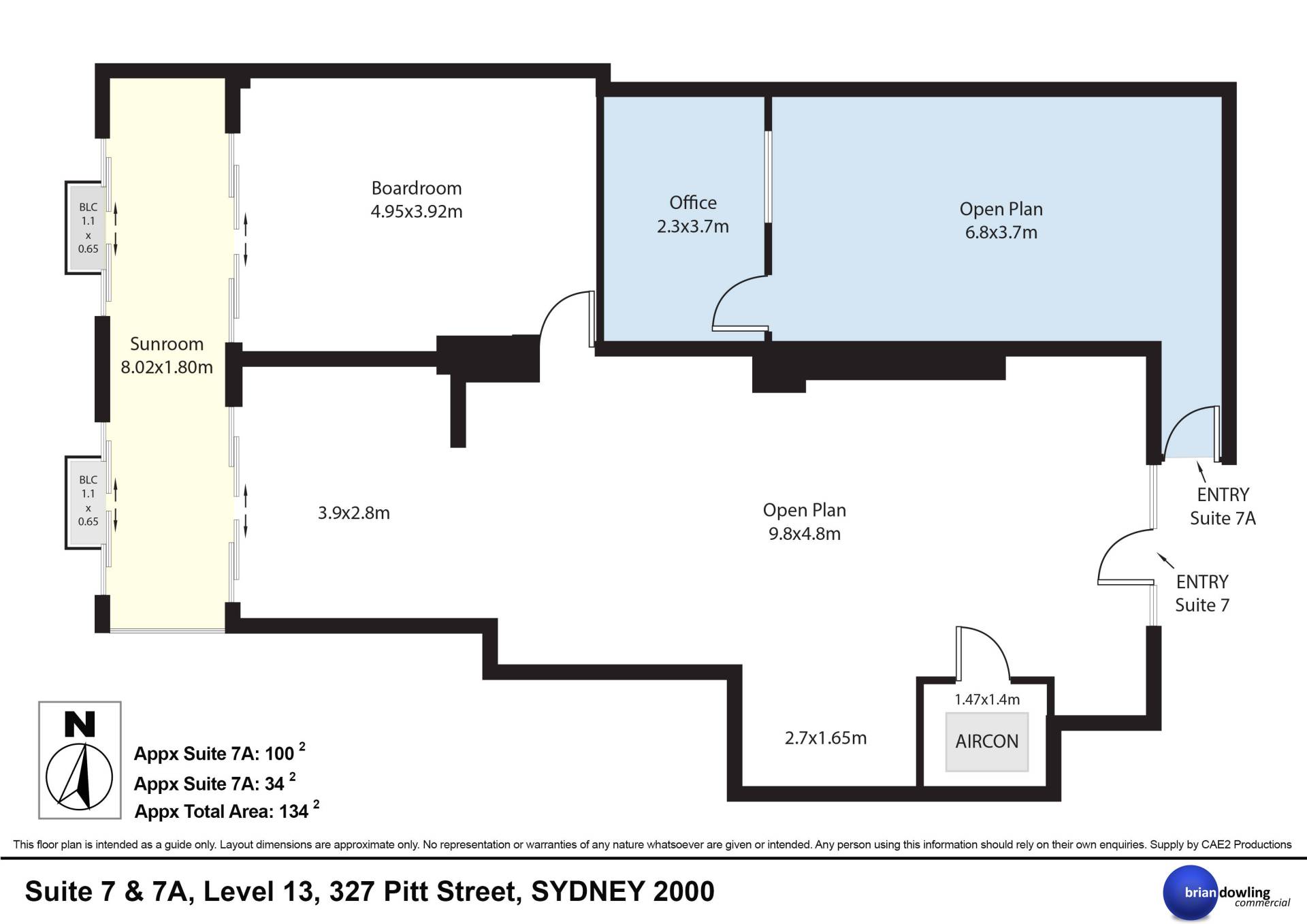
- 100 sqm

- Fitted suite with private office/boardroom, balcony area and large open plan office space

- Freshly painted and new carpet fitted

- Free access to swimming pool, spa, gym, conference room facilities, sauna & gymnasium

- 24/7 access

- Prime location

- Close to Town Hall, QVB & World square


Located on the corner of Pitt Street and Bathurst Street Sydney and is only a moments walk to key amenities including Town Hall Station, The Galleries, and The QVB.


Call Robin 0426 251 234
Address Suite 7/329 Pitt Street, Sydney
Price $55,000 + GST pa
Property Type Commercial
Property ID 162
Category Offices, Medical/Consulting, Other

Agent Details

Robin Simpson photo

Robin Simpson

0426 251 234
View Profile